Description
- PRETTY 3 BEDROOM COTTAGE
- CLOSE TO TOWN CENTRE
- CHARACTERFUL ACCOMMODATION
- OUTSIDE COURTYARD WITH OUTHOUSE AND STORAGE AREA
- VIEWS OVER TOWN TO THE HARBOUR
- FREEHOLD
- COURTYARD HAS SEPARATE ACCESS
- COUNCIL TAX BAND - BUSINESS RATES
- EPC - D
- CURRENTLY USED AS A HOLIDAY LET
A BEAUTIFUL 3 BEDROOM DOUBLE FRONTED COTTAGE LOCATED JUST A SHORT DISTANCE FROM THE CENTRE OF TOWN. COURTYARD TO SIDE AND REAR OF THE PROPERTY, OUTHOUSE/STORAGE AREA. NO ONWARD CHAIN
The Location
Fowey is regarded as one of the most attractive waterside communities in the County. Particularly well known as a popular sailing centre, the town has two thriving sailing clubs, a famous annual Regatta and excellent facilities for the keen yachtsman. For a small town Fowey provides a good range of shops and businesses catering for most day to day needs. The immediate area is surrounded by many miles of delightful coast and countryside much of which is in the ownership of the National Trust. Award winning restaurants, small boutique hotels, excellent public houses etc, have helped to establish Fowey as a popular, high quality, destination.
There are several excellent golf courses within easy reach, many world class gardens are to be found in the immediate area and the fascinating Eden Project with its futuristic biomes is just 5 miles to the north west.
There are good road links to the motorway system via the A38/A30. Railway links to London, Paddington, can be made locally at Par, and St. Austell and there are flights to London and other destinations from Newquay.
The Property
Situated just a short distance from the town quay, this lovely property offers characterful accommodation balanced with modern day requirements.
Updated by the current owners, the cottage has lovely light and airy, open plan living accommodation and the benefit of access to a courtyard and outhouse with storage area. There are 3 bedrooms and a family bathroom.
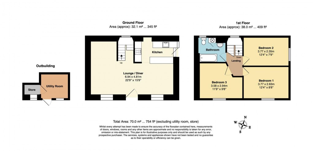
Accommodation
The front door opens to the open plan living area with attractive and characterful slate floor throughout. The sitting room area has space for sofas and a window looks out onto Cobbs Well. The dining area has space for table and chairs and another window with deep sill looks to Cobbs Well. Stairs rise to the first floor.
The well appointed kitchen has breakfast bar and ample worksurface. A range of base and wall units provide storage space and there is an AEG oven with hob over. There is space for the dishwasher and fridge/freezer. A door leads to the courtyard at the side of the property.
Stairs lead to the first floor with part panelled walls in the stairwell. The landing has doors to all bedrooms and bathroom.
There is a good sized double bedroom to the front of the property with lovely views over the town and glimpses of the harbour. A further twin bedroom is located to the front with similar views. A double bedroom is located to the rear with a window overlooking the courtyard to the side of the cottage.
The family bathroom has a white suite, comprising panelled bath with electric shower over, WC and wash hand basin. A cupboard houses the hot water tank and offers additional storage.
Outside
The property is accessed directly from Cobbs Well. There is a timber gate to the side of the cottage which gives direct access to the paved courtyard with access to the kitchen. Steps lead up to a further paved courtyard, with space for dining table and chairs. There is a very usefiul outhouse with power and light and which currently houses the washing machine and tumble dryer. A door opens to a further, very useful storage room.
Council Tax Band - Business Rates
EPC Rating - D
Freehold
Viewing
Strictly by appointment with the Sole Agents: May Whetter & Grose, Estuary House, Fore Street, Fowey, Cornwall, PL23 1AH.
Tel: 01726 832299 Email: info@maywhetter.co.uk
Services
None of the services, systems or appliances at the property have been tested by the Agents.
Local Authority
Cornwall Council.
Floorplan
EPC
To discuss this property call our Fowey branch:
01726 832299
or request a viewing
NB. This is just a request, and it's not confirmed until such time that we contact you.
Market your property
with May Whetter & Grose
Book a market appraisal for your property today. Our virtual options are still available if you prefer.
