Description
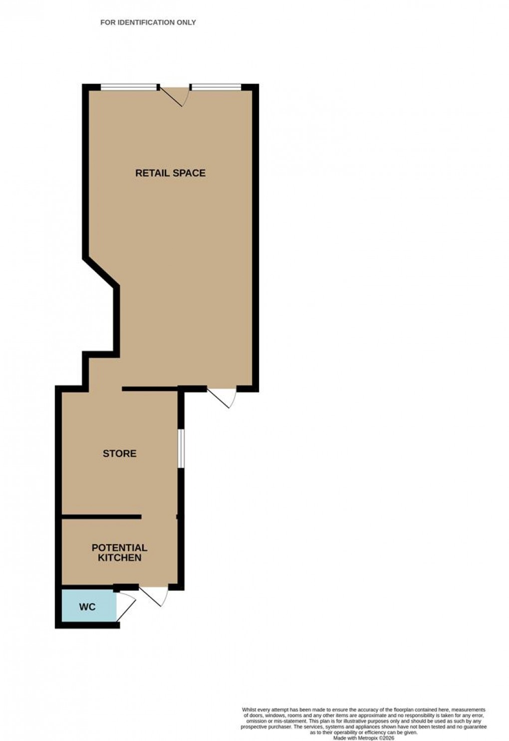
- Ground Floor Retail Space
- Good Front Display
- Busy Roadside Location
- Close to Other Businesses
- Useful Store
- Potential Kitchen
- W.C.
- Potential for a number of uses
- New lease available with terms to be agreed
A ground floor retail unit with good front window display onto the busy Mount Charles Road.
Good size retail space
Useful store room
Potential kitchen
WC
Location
St Austell is the largest town in Cornwall approximately 40 miles from Plymouth and 14 miles from Truro. The town benefits from good road communications served by the A390 and is approximately 6 miles from the A30 trunk road which is the primary road linking Cornwall and the M5 motorway. The subject premises are situated on Mount Charles Road which is a busy through road leading into the town centre.
Retail Area (7.8 x 4.4)
Good front display windows to Mount Charles Road. Three quarter glazed front entrance door. High ceiling. Electric, lighting and power point. Double glazed door to rear yard area.
Store Room (3.4 x 3.0)
Double glazed window to side.
Potential Kitchen Area
Double glazed window to side. Rear door.
Outside W.C.
Tenure
Leasehold with new lease to be agreed based on an asking rent of £6,600 per annum with terms to be agreed.
EPC
Awaited
Local Authority
Cornwall Council
General Enquiries 0300 1234 100
Planning 0300 1234 151
www.cornwall.gov.uk
Business Rates
Please see link to .gov.uk business rates page...
Viewing
By appointment with the Landlords Agents...
MAY WHETTER AND GROSE
01726 222967
robin@maywhetter.co.uk
nathan@maywhetter.co.uk
Floorplan
To discuss this property call our St Austell branch:
Market your property
with May Whetter & Grose
Book a market appraisal for your property today. Our virtual options are still available if you prefer.
